4001 Stinson Blvd NE, Suite 324
St Anthony, MN 55421

Facility Planning & Design

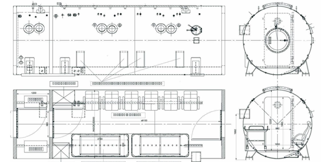
Slider floor plan whtWhether you are planning a new hyperbaric facility or redesigning an existing facility, there are many aspects of the project that must be coordinated to ensure the outcome meets your desired results and within your budget.

Areas to Consider

  • Chamber selection to meet the proposed patient flow and acuity level with an assessment of possible future patient care needs.
  • Selection of patient care equipment that is in compliance with the safety standards of hyperbaric medicine.
  • Clinical space selection and design for the chamber room, patient care, equipment and supply storage, patient flow, and reception / waiting area.
  • Review of construction plans for the chamber room for standards compliance and for functionality.
  • Recommendations and assistance with hyperbaric staffing regarding an assessment of FTE needs and selection of personnel.
  • Development of patient pre-assessment forms and informed consent forms.
  • Development of daily start up checklist, pre and post treatment checklists, chamber treatment logs, and productivity spreadsheets.
  • Development of hyperbaric specific policies and procedures.
  • Development of training and drills for standard operation procedures (SOP’s) and for emergency operating procedures (EOP’s).
  • Development of a quality improvement program.
  • Development of a global departmental safety program.
  • Compliance with the *NFPA 99 standards of chapter 20 (Hyperbaric Medicine).
  • Preparations for meeting the requirements of the UHMS Accreditation Survey.
  • Introductory training in the concepts of Hyperbaric Medicine. (Note: This training does not qualify as a certified course and pre-requisite for the CHT exam.
  • Formal competency validation for the chamber operator(s).
  • Training in the use of transcutaneous oxygen monitoring.
  • Training in the basic principles of wound photography and documentation.
  • Establishment of a preventative maintenance program.